




HD系列單機除塵設備,具有體積小處理風量大,結構緊湊,使用方便可靠等優點,從除塵設備上清除下來的粉塵可直接排入倉內,亦可直接落在皮帶上,含塵氣體由除塵設備下部進入除塵設備,經濾袋過濾后,清潔空氣由引風機排出.單機除塵設備需要進行清灰時,清灰完畢后,除塵
服務電話:13091153069(同微信)


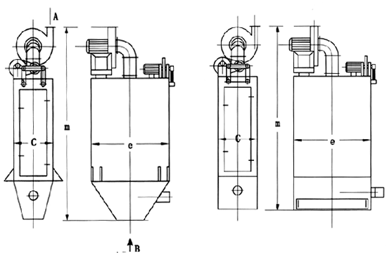
HD系列皮帶機單機除塵器發往江蘇昆山使用現場,此除塵器布袋為內濾結構,無除塵骨架,清灰不用另配氣源,是一款十分經濟耐用的單機除塵器。
一、簡介
HD系列單機除塵設備是專為水泥廠庫頂、庫底,皮帶輸送及局部塵源除塵而設計的。也可以用于其它行業的局部塵源除塵用,具有體積小處理風量大,結構緊湊,使用方便可靠等優點,從除塵設備上清除下來的粉塵可直接排入倉內,亦可直接落在皮帶上,含塵氣體由除塵器下部進入除塵器,經濾袋過濾后,清潔空氣由引風機排出。除塵器工作一段時間后,濾袋上的粉塵逐漸斬增多致使使濾袋阻力上升,需要進行清灰,清灰完畢后,除塵器又正常進行工作。
二、工作原理
含塵氣體由除塵器入口進入箱體,通過濾袋進行過濾,粉塵被留在濾袋內表面,凈化后的氣體通過除塵濾袋進入風機,由風機吸入直接排入室內(亦可以接管排到室外)。
隨過濾時間的增加,濾袋內表面粘附的粉塵也不斷增加,濾袋阻力隨之上升,從而影響除塵效果,采用自控清灰機構進行定時搖振清灰或手控清灰機構,停機后自動搖振數十秒,使粘在濾袋內表面的粉塵抖落下來,粉塵落到灰斗,抽屜或直接落到輸送皮帶上。
三、用途范圍
本系列產品產品廣泛用于水泥行業外,還可用于鑄造工業、陶瓷工業、玻璃工業、砂輪制造、化工制品、機械加工等行業的除塵。該產品對比重較大的金屬切削,鑄造用砂等和中等比重的粉塵,如水泥、陶瓷原料粉塵、顏料、膠木粉、塑料粉等,以及比重較輕的木工加工等粉塵均有良好除塵效果,排放濃度保證達到O排放要求。
四、技術性能
|
HD8924
(ABC) |
HD8923
(ABC) |
HD8948
(ABC) |
HD8956
(ABC) |
HD8964
(ABC) |
HD8964L
(ABC) |
HD8980
(ABC) |
||
|
處理風量(m3/h)
|
1000-1500
|
1500-2000
|
2000-3000
|
3000-3480
|
3480-4200
|
4200-5200
|
5200-6000
|
||
|
除塵器阻力(Pa)
|
1200
|
1200
|
1200
|
1200
|
1200
|
1200
|
1200
|
||
|
過濾面積(m2)
|
10
|
14.48
|
20
|
25
|
29.0
|
35
|
40
|
||
|
過濾風速(m/min)
|
< 2.5
|
||||||||
|
除塵效率(%)
|
> 99.9
|
||||||||
|
風機功率(kw)
|
3
|
3
|
5.5
|
5.5
|
835
|
8.5
|
11.0
|
||
|
清灰電機功率(kw)
|
0.25
|
0.25
|
0.25
|
0.37
|
0.37
|
0.37
|
0.37
|
||
|
風機電機型號
|
Y9L00-2
|
Y100L-2
|
Y232S1-2
|
Y132S1-2
|
Y132S2-2
|
Y132S2-2
|
Y169M1-2
|
||
|
清灰電機型號
|
AQ27114
|
AQ27114
|
AQ27124
|
AQ2-7124
|
AQ2-7124
|
AQ27124
|
Y801-4
|
||
|
A型重量kg
|
680
|
756
|
893
|
987
|
1103
|
1986
|
1210
|
||
HD 系列單機除塵器外型尺寸表 表2
|
型號 規格 |
外 型 尺 寸 |
|
|||||||||||||||||||
|
a |
b |
c |
d |
e |
f |
g |
h |
i |
j |
k |
l |
m |
n |
O |
P |
q |
|
|
|
||
|
HD8924 (A、B、C) |
1734 |
454 |
560 |
150 |
820 |
1996 |
860 |
800 |
810 |
40 |
70 |
175 |
2450 |
286 |
280 |
1394 |
455 |
|
|
|
|
|
HD8932 (A、B、C) |
1730 |
510 |
560 |
150 |
1080 |
1990 |
860 |
800 |
1070 |
40 |
70 |
175 |
2500 |
286 |
323 |
1386 |
561 |
|
|
|
|
|
HD8948 (A、B、C) |
1754 |
660 |
820 |
200 |
1080 |
2105 |
1120 |
1060 |
1070 |
40 |
70 |
200 |
2765 |
287 |
362 |
1394 |
585 |
|
|
|
|
|
HD8956 (A、B、C) |
1977 |
680 |
1080 |
200 |
950 |
2114 |
1380 |
1320 |
940 |
40 |
70 |
200 |
2794 |
287 |
362 |
1394 |
520 |
|
|
|
|
|
HD8964 (A、B、C) |
1754 |
680 |
1080 |
250 |
1080 |
2114 |
1380 |
1320 |
1070 |
40 |
70 |
200 |
2794 |
287 |
362 |
1394 |
520 |
|
|
|
|
|
HD8964L (A、B、C) |
2010 |
680 |
1080 |
250 |
1080 |
2370 |
1380 |
1320 |
1070 |
40 |
70 |
200 |
3050 |
287 |
356 |
1634 |
585 |
|
|
|
|
|
HD8980 (A、B、C) |
2110 |
850 |
1080 |
250 |
1340 |
2510 |
1380 |
1320 |
1330 |
40 |
70 |
230 |
3360 |
322 |
397 |
1700 |
720 |
|
|
|
|
|
|
C1 |
C2 |
C2 |
C4 |
C5 |
C6 |
n1 |
d1 |
X1 |
Y1 |
D1 |
D2 |
D3 |
D4 |
D5 |
D6 |
n2 |
d2 |
X2 |
Y2 |
|
|
HD8924 (A、B、C) |
128 |
160 |
182 |
92 |
126 |
148 |
14 |
7 |
4 |
3 |
820 |
870 |
910 |
560 |
610 |
650 |
30 |
12 |
10 |
5 |
|
|
HD8932 (A、B、C) |
128 |
160 |
182 |
92 |
126 |
148 |
14 |
7 |
4 |
3 |
1080 |
1130 |
1170 |
560 |
610 |
650 |
30 |
12 |
10 |
5 |
|
|
HD8948 (A、B、C) |
196 |
228 |
250 |
128 |
165 |
184 |
14 |
7 |
4 |
3 |
1080 |
1130 |
1170 |
820 |
868 |
910 |
34 |
12 |
10 |
7 |
|
|
HD8956 (A、B、C) |
196 |
228 |
250 |
128 |
165 |
184 |
14 |
7 |
4 |
3 |
950 |
1000 |
1040 |
1080 |
1130 |
1170 |
36 |
12 |
10 |
8 |
|
|
HD8964 (A、B、C) |
196 |
228 |
250 |
128 |
165 |
184 |
14 |
7 |
4 |
3 |
108 |
1130 |
1170 |
1080 |
1130 |
1170 |
40 |
12 |
10 |
10 |
|
|
HD8964L (A、B、C) |
196 |
228 |
250 |
128 |
165 |
184 |
14 |
7 |
4 |
3 |
108 |
1130 |
1170 |
1080 |
1130 |
1170 |
40 |
12 |
10 |
10 |
|
|
HD8980 (A、B、C) |
221 |
252 |
275 |
144 |
177 |
200 |
14 |
7 |
4 |
3 |
1340 |
1400 |
1440 |
1080 |
1130 |
1170 |
40 |
12 |
10 |
10 |
|
八、使用說明
1.HD系列單機除塵機組,安裝在產生粉塵的機械設備鄰近處,并由用戶按照除塵機組上進風口尺寸,自行配制金屬或塑料吸塵管道和吸塵罩(亦可在訂貨時與生產廠聯系,代為配制)。
2.機組工作前應檢查檢修門,各法蘭連接處是否密封,以免泄漏,降低除塵效果。
3.該機組電壓為380伏。從機組外部電線接上電源后即可開始使用,初運轉時,應注意風機的轉動方向(如反轉,則只需調換電源接線)。
4.機組電控箱蓋,在工作時不得隨意打開,如需調節清灰時間,或需檢修電路時應停機或切斷電源后進行工作。
5.根據粉塵性質和含塵濃度的大小,調節定時清灰。
6.吸塵罩是保證機組處于O佳狀態的關鍵配件,使用單位應根據加工件的外型尺寸及粉塵的性質、按通,近、封、便設計吸塵罩的原則,制作理想的吸塵罩。
九、維護保養
1.應定期檢查袋式除塵器的情況,如發現破袋、滑袋,應及時更換濾袋,應根據實際情況定期更換濾袋,一般每年更換一次濾袋。
2.一般隔六個月,要檢修一次清灰機構。
3.易損件可電報,信函或與加工廠聯系。
十、注意事項
1.本機組不適用于潮濕和帶有腐蝕性的氣體,不應長時間處理高于120℃的廢氣。如需用于處理高溫廢氣,請告知制造廠家訂做高溫濾布。
2.機組在開,停及運轉過程中,如有異常現象,應立即停止工作,進行檢查修理。
3.停機應按“停止按鈕”使搖振機構工作數十秒,不應直接拉下電源閘刀停機。
